descargar planos PDF
return
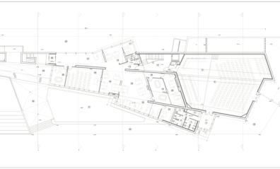
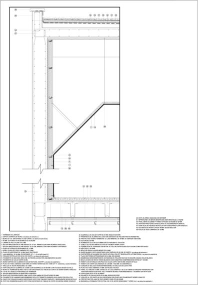
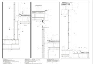
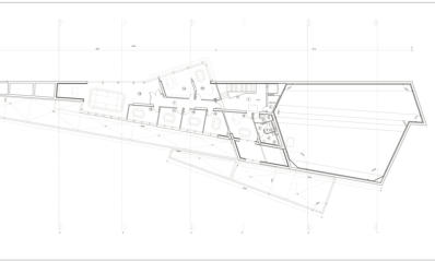
Sede Comarcal       
Me gustaría darte el mar Todo ese mar que no conoces Todo ese mar que no has bebido Que hace más seco tu camino de piedras sordas De piedras sordas y de espinos Me gustaría darte el mar Me gustaría darte el mar Todo ese mar cansado y bello Que cobijó grandeza y trueno Como el señor que da la mano sin dividir Sin dividir humano y bueno Me gustaría darte el mar Me gustaría darte el mar Para inundar tu tierra seca Sedienta de lluvia serena Siglos y siglos suplicada por esta casa Por esta casa despreciada Me gustaría darte el mar Me gustaría darte el mar Para llenar de luz tu corazón calizo Como la tierra quebrada De noche y soledad precipitada Me gustaría darte el mar Darte el mar Darte el mar Me gustaría darte el mar Joaquín Carbonell Proyecto y obra , en colaboración con Jesús Sarría, arquitecto técnico, y Fernando Purroy , arquitecto.
C/ Pacific Plaza, Office 6    San Francisco - Panama City - PanamaMobile  +507  6525 1721
menu